Boquete Office 6611.6049
Panama City 6812.8278
Coronado Office 6812.5356

Sign Up

Already a member? Log in

Reset Password

Enter your email address and we’ll send you a link to reset your password

Save Listing

By saving this listing you will receive updates

Already have an account? Log in
Save To Favorites Save To Favorites

Main Content

Preconstruction Marina Homes for Sale in Bocas del Toro, Panama – Gated 50-Acre Community

Caribbean, Bocas Del Toro

This preconstruction community in Bocas del Toro, Panama delivers titled homesites inside a 50-acre gated development with marina access. The location keeps you approximately five minutes from the beach and about ten minutes from town, giving you privacy without disconnecting you from services and daily life.

The developer is releasing approximately ten lots in this phase. At closing, each lot transfers titled and registers under the new owner’s name.


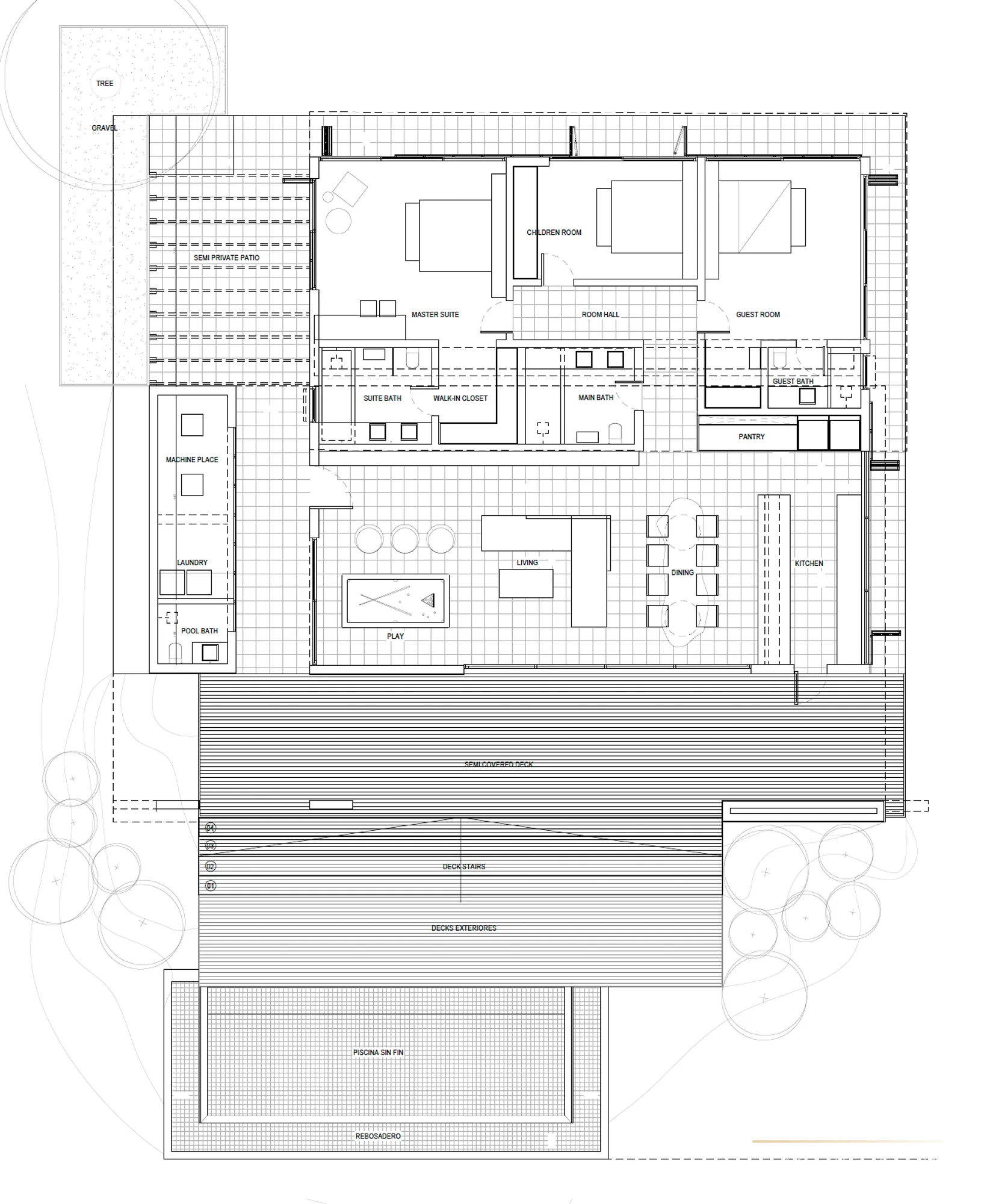
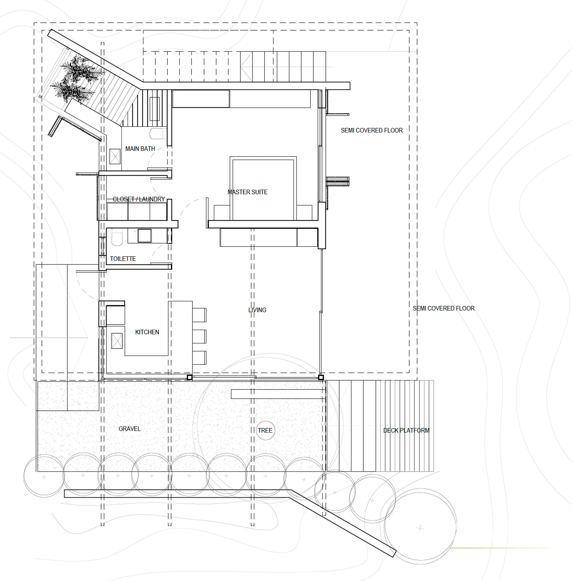
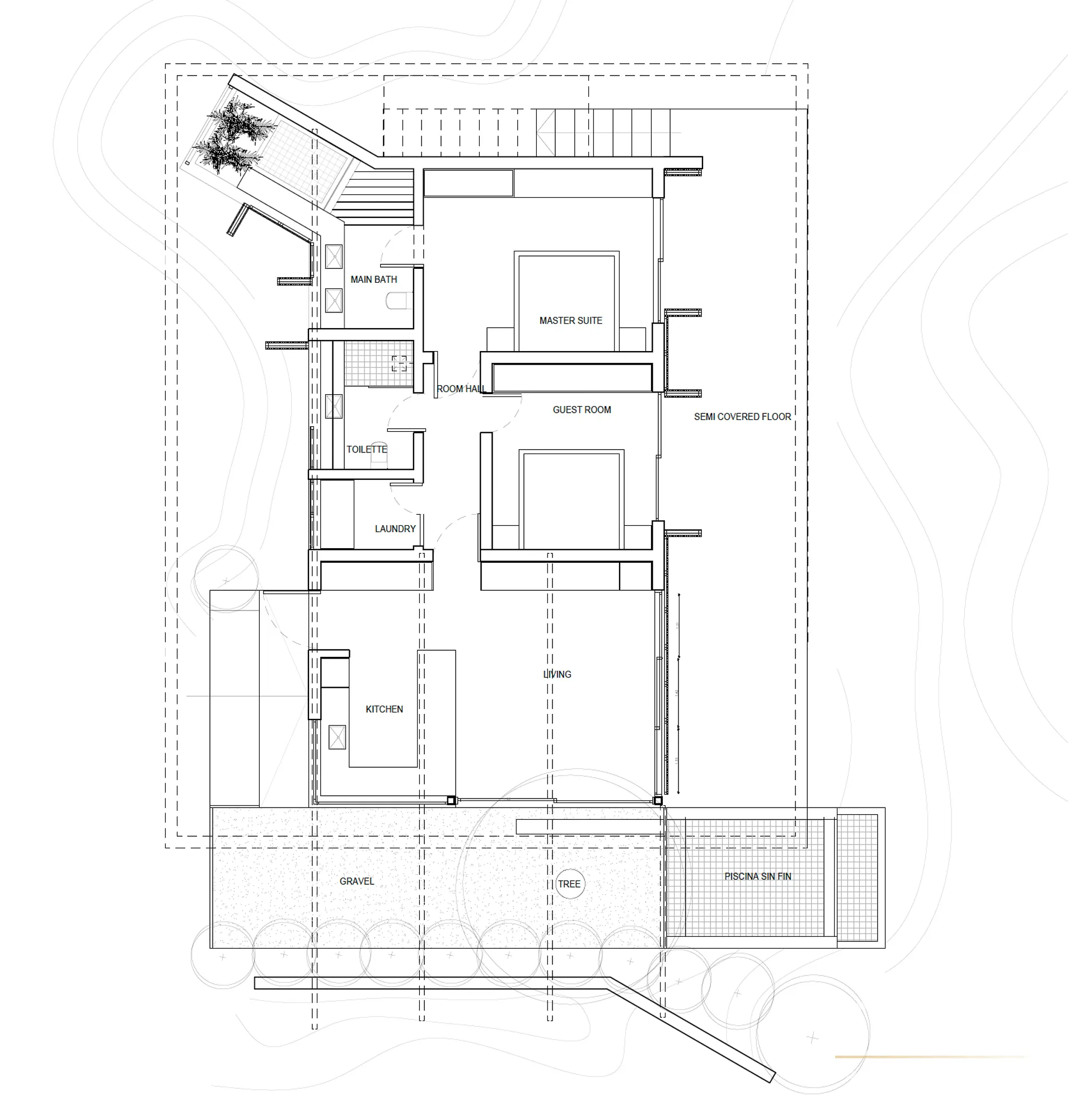
The Homes

Homes start at $399,000, with an anticipated completion timeline of approximately 18 months from contract. Buyers choose from four models:

Standard - Burn Brae
Premium - Burn Brae 
Deluxe - Burn Brae 
Luxury - Burn Brae

The floor plans range from 1 to 3-bedroom homes, suitable for personal residence or commercial use.

Across all models, the design emphasizes practical indoor-outdoor living. Open living areas flow directly onto covered terraces and private pools. Large sliding glass doors extend the living space outward and create continuity between interior and deck. The layouts position bedrooms for privacy, while larger models include en-suite bathrooms and defined storage areas.

These homes avoid excess. They focus on proportion, functionality, and designs that respond to the climate and lifestyle of Bocas del Toro.


Indoor–Outdoor Design

The layout integrates the living space with the exterior deck from the beginning. Covered terraces support year-round use, and private pools face the jungle rather than neighboring structures.

For buyers evaluating Caribbean homes in Panama, that connection between interior and exterior space directly impacts long-term comfort and rental appeal.


The Community

The project operates as a low-density gated community with marina access. Controlled entry and boating infrastructure give owners flexibility that many island properties do not provide.

Each homesite averages around 2,000 square meters, varying between 1,800 sqm and 2,000 sqm depending on geography and drainage. The layout separates the lots from the main estate and positions each home to capture jungle views while maintaining distance between neighbors.


Ownership & Structure

  • 50-acre gated community

  • Marina access

  • Approximately 10 lots available

  • Titled lots transferred at closing

  • 1–3 bedroom homes

  • 18-month anticipated build timeline

  • Lots averaging ~2,000 sqm

  • Suitable for personal or commercial use

The project outlines its structure clearly, which helps international buyers evaluate preconstruction homes in Panama with more certainty.


About Bocas del Toro

Bocas del Toro sits on Panama’s Caribbean coast and forms part of an island archipelago known for tropical forests and a water-based lifestyle. The market remains lower density compared to high-rise coastal developments, and homes integrate into the natural setting rather than vertical towers.

Isla Colón concentrates most commercial services, restaurants, and daily conveniences. Residents move between islands by water taxi or private boat, and marina access within a residential community adds practical value for those who navigate regularly.

Travel remains accessible. A flight from Panama City to Bocas del Toro takes approximately 1 hour and 10 minutes, making it viable for full-time residents and seasonal owners alike. You can also drive from David or Boquete and transfer by boat.

Frequently Asked Questions (Q&A)

1. Are the lots titled?

Yes. Each homesite is individually titled and will be transferred and registered under the new owner’s name at closing.

2. How large are the lots?

Lots average approximately 2,000 square meters, with variations between 1,800 sqm and 2,000 sqm, depending on geography and drainage.

3. How many homes are available in this phase?

Approximately 10 lots are being released in the current phase of the development.

4. What is the starting price?

Homes start at $399,000, depending on the selected model.

5. What home models are available?

Buyers can choose from four designs:

  • Standard

  • Premium

  • Deluxe

  • Luxury

Configurations range from 1 to 3 bedrooms.

6. What is the estimated construction timeline?

The anticipated completion timeline is approximately 18 months from contract.

7. Can the homes be used for rental or commercial purposes?

Yes. The homes are suitable for both personal residence and commercial use, depending on the buyer’s objectives.

8. How far is the community from the beach?

The community is located approximately 5 minutes from the beach.

9. How far is it from town?

It is approximately 10 minutes from town services, restaurants, and commercial areas.

10. How do you access Bocas del Toro?

The flight from Panama City to Bocas del Toro takes approximately 1 hour and 10 minutes. Alternatively, you can drive from David or Boquete and transfer by boat.

11. What makes this project different from other homes in Bocas del Toro?

This project combines:

  • Titled land

  • Gated entry

  • Marina access

  • Defined lot sizes

  • Structured preconstruction timeline

That level of organization is not common across all homes in Bocas del Toro.

Inquire
For inquiries,
please contact casa solution, or
fill out the form below.

    Are you interested in

    I'm interested in Preconstruction Marina Homes for Sale in Bocas del Toro, Panama – Gated 50-Acre Community

      Share this Listing

      Casa

      CONTACT US

      Casa Solution is now Open. The staff are working full time and are available in the office, by phone and email.

      Please call 011.507.720.1331 or email info(at)casasolution(dotted)com with any questions. We are happy to help.

      The Casa Solution office hours are 8:30am – 5:30pm Monday through Saturday. The offices are closed on Sundays and Panamanian National Holidays.

      For assistance, please visit us in Boquete, call, text, fill out the below form or email and we will be happy to be of service. We look forward to helping you.

      Thank you for the opportunity to be of service.

      GET TO KNOW US MORE